Description
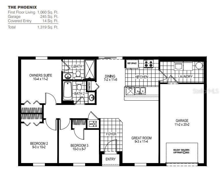
READY NOW!!! HOME IS COMPLETED and AVAILABLE! 10 Year Structural Warranty, Builders Warranty & Manufacturers warranties are all included.. Welcome to the world of homeownership with the Phoenix floorplan from Holiday Builders' Inspire Collection. Step into a cozy and inviting space that instantly feels like home. This thoughtfully designed three-bedroom, two-bathroom residence is crafted for comfort and style. As you enter, you'll discover the heart of the homethe kitchen seamlessly blending with the combined dining and great room area. Say goodbye to formal living and dining rooms and embrace a contemporary layout that effortlessly accommodates entertaining friends and family.
-
3BEDS
-
0.18ACRES
-
2BATHS
-
01/2 BATHS
-
1,060SQFT
-
$0$/SQFT
School Ratings & Info
Description
READY NOW!!! HOME IS COMPLETED and AVAILABLE! 10 Year Structural Warranty, Builders Warranty & Manufacturers warranties are all included.. Welcome to the world of homeownership with the Phoenix floorplan from Holiday Builders' Inspire Collection. Step into a cozy and inviting space that instantly feels like home. This thoughtfully designed three-bedroom, two-bathroom residence is crafted for comfort and style. As you enter, you'll discover the heart of the homethe kitchen seamlessly blending with the combined dining and great room area. Say goodbye to formal living and dining rooms and embrace a contemporary layout that effortlessly accommodates entertaining friends and family.
Related Properties
© 2026 My Florida Regional MLS DBA Stellar MLS. All rights reserved. All listings displayed pursuant to IDX. All listing information is deemed reliable but not guaranteed and should be independently verified through personal inspection by appropriate professionals. Listings displayed on this website may be subject to prior sale or removal from sale; availability of any listing should always be independently verified. Listing information is provided for consumers personal, non-commercial use, solely to identify potential properties for potential purchase; all other use is strictly prohibited and may violate relevant federal and state law. Data last updated 2026-02-09T18:44:02.38.
