Description
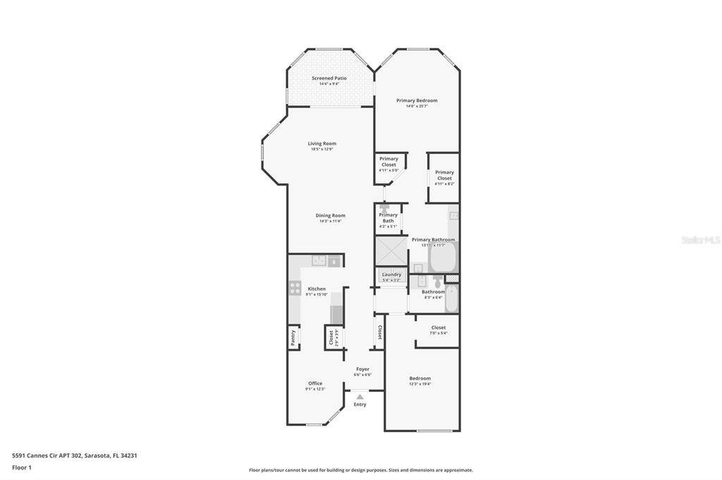
MUST SELL THIS MOVE-IN READY CONDO built in 2006 in prestigious Phillippi Landings a gated waterfront community. Cross the private bridge and enter the meticulously landscaped grounds, offering a clubhouse with a catering capacity kitchen, exercise equipment building, dog park and heated pool and spa. Stroll along the brick, lighted promenade that parallels the dock connecting to 30 private boat slips. There is a newer kayak rack and launch. The ground level of the building is the covered garage. Ride the elevator to the third floor and enter 302. The high ceilings are domed with tray ceilings. The den offers a private space. In the kitchen you will find stainless steel appliances, custom cabinets to the ceiling, lower cabinets with pull out drawers for maximum use. Look across the quartz countertops and bar into the dining area and then onto the living room. Crown molding emphasizes the openness of this space with its bay windows on one side and double sliding doors to the covered, private screened balcony. This balcony seems to be nestled in the trees while having a view of the pool and front gate. The master ensuite also has bay windows, two walk-in closets, and the door leads to the lanai. The master bathroom features a long vanity with sink, a smaller sink and vanity, a luxurious soaking tub, a walk-in shower and separate toilet room. There is an ensuite guest bedroom with a tub shower combination and large walk-in closet. The newer full-size dryer and clothes washer are located behind wood bi-folding doors. All the windows, sliding glass doors and front door are Dade County hurricane proof construction, There are plantation shutters on every window. Tile and newer laminate wood floors throughout. This condo includes an assigned parking space adjacent to a private storage room. Walk under cover to your mailbox and the elevator. You may wish to join the busy social life at PL. There are monthly cocktail parties, an assortment of card games, etc., and frequent fun parties. Just to the south is historic Phillippi Park. A mile beyond that is the bridge to Siesta Key Beach. Enjoy the ultimate in location with proximity to shopping, the pristine award winning fine sandy beaches or golf. This building's financial reserves meet the new Florida State requirements for condominium buildings. Financials and engineering reports are available upon requirements. Sarasota offers cultural entertainment, enjoy shows at the theaters or browse the amazing artwork at the John Ringling Museum. In addition, the Opera House is downtown Sarasota and symphony hall for diverse choices of entertainment and Saturday's Farmers Market. Sarasota hosts annual events like the Winefest, New Year's Eve celebrations and more. Seller will entertain all offers.
-
2BEDS
-
N/AACRES
-
2BATHS
-
01/2 BATHS
-
1,720SQFT
-
$0$/SQFT
School Ratings & Info
Description
MUST SELL THIS MOVE-IN READY CONDO built in 2006 in prestigious Phillippi Landings a gated waterfront community. Cross the private bridge and enter the meticulously landscaped grounds, offering a clubhouse with a catering capacity kitchen, exercise equipment building, dog park and heated pool and spa. Stroll along the brick, lighted promenade that parallels the dock connecting to 30 private boat slips. There is a newer kayak rack and launch. The ground level of the building is the covered garage. Ride the elevator to the third floor and enter 302. The high ceilings are domed with tray ceilings. The den offers a private space. In the kitchen you will find stainless steel appliances, custom cabinets to the ceiling, lower cabinets with pull out drawers for maximum use. Look across the quartz countertops and bar into the dining area and then onto the living room. Crown molding emphasizes the openness of this space with its bay windows on one side and double sliding doors to the covered, private screened balcony. This balcony seems to be nestled in the trees while having a view of the pool and front gate. The master ensuite also has bay windows, two walk-in closets, and the door leads to the lanai. The master bathroom features a long vanity with sink, a smaller sink and vanity, a luxurious soaking tub, a walk-in shower and separate toilet room. There is an ensuite guest bedroom with a tub shower combination and large walk-in closet. The newer full-size dryer and clothes washer are located behind wood bi-folding doors. All the windows, sliding glass doors and front door are Dade County hurricane proof construction, There are plantation shutters on every window. Tile and newer laminate wood floors throughout. This condo includes an assigned parking space adjacent to a private storage room. Walk under cover to your mailbox and the elevator. You may wish to join the busy social life at PL. There are monthly cocktail parties, an assortment of card games, etc., and frequent fun parties. Just to the south is historic Phillippi Park. A mile beyond that is the bridge to Siesta Key Beach. Enjoy the ultimate in location with proximity to shopping, the pristine award winning fine sandy beaches or golf. This building's financial reserves meet the new Florida State requirements for condominium buildings. Financials and engineering reports are available upon requirements. Sarasota offers cultural entertainment, enjoy shows at the theaters or browse the amazing artwork at the John Ringling Museum. In addition, the Opera House is downtown Sarasota and symphony hall for diverse choices of entertainment and Saturday's Farmers Market. Sarasota hosts annual events like the Winefest, New Year's Eve celebrations and more. Seller will entertain all offers.
Related Properties
© 2026 My Florida Regional MLS DBA Stellar MLS. All rights reserved. All listings displayed pursuant to IDX. All listing information is deemed reliable but not guaranteed and should be independently verified through personal inspection by appropriate professionals. Listings displayed on this website may be subject to prior sale or removal from sale; availability of any listing should always be independently verified. Listing information is provided for consumers personal, non-commercial use, solely to identify potential properties for potential purchase; all other use is strictly prohibited and may violate relevant federal and state law. Data last updated 2026-01-17T07:50:24.47.
